
FLUE WALL BAKIM PLATFORMU
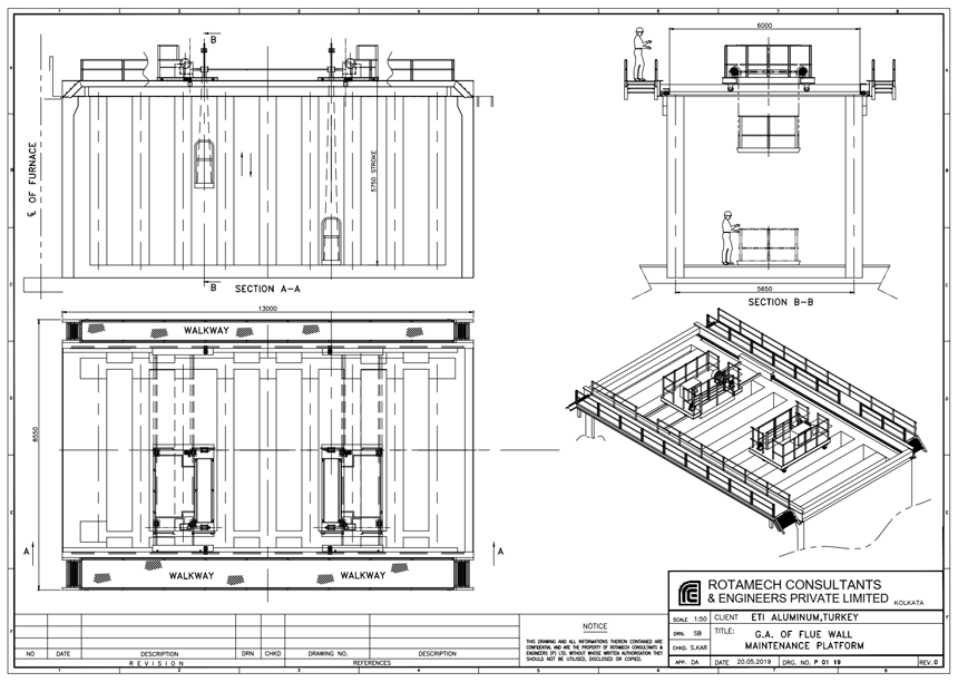
PIT BAKIM ÜNİTESİ Aluminium smelting process involves extracting aluminium from its oxide alumina via an electrolytic process. Carbon anodes are used for this reduction process and these are manufactured in separate bake furnace pits. These pits are typically around 7m long, 2m wide and 6m deep and are arranged in banks of up to 8 pits with often over 50 banks of pits in a smelter. The pits are lined with carbon tiles and need regular maintenance, and that’s where the maintenance platform is used. These machines provide very safe access to the pits via long travel, cross travel and hoisting motions to allow workmen to reline the pit walls. Safety is a critical component of the machines as the working conditions are tough, temperatures as high as 60 degrees in the pits. The units are hoisted via a single lifting pint by an overhead crane and positioned over a bank of pits. Once the maintenance is completed, the crane picks the unit up again and relocates it to the next bank of pits. And so on. The Pit maintenance Unit is designed with necessary safety features to avoid minimum possibility of safety or health hazard to the operators.
|